ремонт
під ключ
з 1995 року Компанія "REMVOPROS" спеціалізується на комплексному ремонті у Києві, постачанні будматеріалів понад 50 торгових марок. У штаті понад 450 співробітників.
Працюємо без вихідних по Києву та обл.
Плануєте ремонт?
за європейськими стандартами ISO
Безкоштовний виїзд спеціаліста.
Гарантія на ремонт до 3 років.
Найнижча ціна в Києві!
Надішліть заявку та отримайте приємні ціни.

Дайте відповідь на кілька запитань і отримайте попередній проект і розрахунок вартості.
Зробимо швидко!
Вам кажуть: "Кошторис ми розрахуємо по телефону, а бригада буде вже завтра..."
По факту бригада буде їхати до Вас на об'єкт тиждень
Зробимо дешево або недорого
Ціна за м2 у нас всього 30 грн, а на всі матеріали ми можемо дати Вам знижки від 30% ...
Тільки після авансу такі "майстри" зазвичай зникають або по факту Ви купуєте
матеріал за завищеними цінами.
Зробимо якісно
Працюють у нас тільки спеціалісти з досвідом роботи від 10 років...
Не страшно, якщо до Вас на об'єкт приїдуть працівники з південних країн — страшно,
коли на об'єкт приїдуть "дилетанти", які будуть тягнути, але так нічого й не зроблять.
Будь ласка, відрізняйте порожні слова від твердих фактів, які можна перевірити.
Оскільки ймовірність отримати компенсацію або гарантійний ремонт від таких підрядників дорівнює 0,1%
Бережемо Ваш час, гроші та нерви, виконуючи весь комплекс робіт
Комплексне надання послуги
Робимо все під ключ і беремо на себе всі складні питання, що виникають по ходу ремонту
Постійна звітність
Всю звітність про хід ремонту надсилаємо електронною поштою, Viber, Telegram або через соц. мережі
Допомога з матеріалами
Компанія найбільшого холдингу будматеріалів ціни на всі матеріали нижчі, ніж у будь-якій компанії на 30 - 50 %
Безкоштовне прибирання
Проведемо безкоштовне прибирання та вивеземо сміття після закінчення ремонту
Потрійна гарантія не на словах — все прописано в договорі та кошторисі
Гарантія термінів
Професіоналізм і якість на всіх етапах.
Гарантія на ремонт - до 3 років
Гарантія на матеріали від виробника. Гарантія на ремонт - до 3 років.
Гарантія чесної ціни
Вартість роботи прораховується в кошторисі, яку підписуємо ми з Вами в договорі
ЯКІСТЬ ТА ГАРАНТІЯ МАТЕРІАЛІВ
Застосовуємо сучасні, надійні та екологічно чисті матеріали, випробувані нами та позитивно зарекомендовані на практиці! Безкоштовно консультуємо щодо матеріалів та виробників, а також беремо закупівлю матеріалів на себе - привеземо все, що потрібно: вам не доведеться переплачувати і витрачати час на покупку матеріалів
Власні перевірені бригади, укомплектовані професійним будівельним інструментом
Вузькопрофільні спеціалісти
У нашій команді кожен займається своєю справою і добре її знає
Власне обладнання
Загальна вартість всього обладнання понад 100 тис грн
Професійні бригади
Над кожним об'єктом працює команда: інженер, архітектор, кошторисник, виконроб, дизайнер, оздоблювальник, сантехнік, електрик, підсобник
Щорічне навчання та переатестація
Кожен працівник проходить переатестацію та навчання мінімум раз на рік

Знаємо ринок і пропонуємо доступні ціни для Києва та району — ремонт квартири від 150$ м2
Оновлено: 24 березня
PDF 1.6 MB
Квартира в ЖК Грушевський посад для молодої сім'ї з двома дітьми-підлітками
Тип житла:
Новобудова
Площа:
111 м2
Термін виконання:
30 робочих днів
Завдання:
Сучасний інтер'єр у дусі контемпорарі – це напрямок, в якому ми в подальшому працювали, було обрано при першій же зустрічі. Стояло завдання збільшити простір візуально, по максимуму наповнивши його системою зберігання, створити світлий затишний інтер'єр для життя з лаконічним оздобленням стін у теплій пастельній гамі з незначною кількістю яскравих акцентів, комфортний простір для всіх членів сім'ї.
Особливість ремонту:
Враховуючи, що в сім'ї 2 сини-підлітки і у кожного своє захоплення, було прийнято рішення створити для кожного окрему кімнату. Унікальність планування в тому, що нам вдалося з 3-х житлових кімнат отримати 4 і при цьому візуально зберегти простір вітальні за рахунок оригінальних рішень у зоні холу, вид на який відкривається з передпокою. Перегородка з декоративних рейок ділить приміщення на 2 зони: вітальню-кухню та хол. В результаті перепланування в центрі вітальні виявилася несуча колона, яка зіграла нам на руку. Між холом і вітальнею отримали додатковий простір, де розмістилася шафа для зберігання книг, різних предметів інтер'єру. Декоративна світлова панель, закріплена до колони з боку коридору - ще одне оригінальне рішення, яке створює додаткову гру світла. Об'єднавши кухню з вітальнею, ми створили зону спілкування для всіх членів сім'ї. Стіни громадських приміщень обклеєні шпалерами у світлій сіро-бежевій гамі. Міжкімнатні двері в оливково-кремовій гамі чудово розбавляють загальну сіру гаму стін та підлоги. Передпокій обладнаний зручною шафою для зберігання одягу. М'який елемент для сидіння складної форми повторює вигини стіни та підкреслює індивідуальність планувального рішення. Враховано місце для зберігання взуття та інших необхідних засобів для догляду за одягом. Дзеркало на всю висоту вирішує одне з найважливіших питань щодо розширення простору. Прикрашають дзеркальні полотна оригінальний підвісний консольний столик. Яскравий акцент при вході в квартиру - декоративна перегородка з дерев'яних рейок з інтегрованим консольним підвісним столиком. Вертикальне розташування рейок візуально витягує простір. Рухаючись у бік вітальні, перед нами розкривається образ цілісного, наповненого повітрям і найнеобхіднішими функціональними предметами, інтер'єру: кутовий диван, тумба під телевізор і журнальний столик-трансформер. За декоративною перегородкою організовано бар та зона зберігання на всю висоту приміщення. Весь простір квартири крім спальних зон об'єднує та візуально збільшує підлога з плитки під імітацію благородного світлого відтінку дерева. Кухонний гарнітур виконаний у світлих тонах, майже зливаючись зі стінами. Він лаконічний. Невисокі фасади над робочою зоною створюють легкість. Основною функцією служить прихована система зберігання та вбудована техніка. Гарнітур виконаний у комбінації з матового скла та лаку пастельного бежево-бузкового кольору. Завершує композицію обідня група з круглим розкладним столом та сіро-бузкові штори. На балконі розмістилася барна стійка як акцент, а також зелені рослини в навісних кошиках, прикріплених до стіни. Ванна кімната вирішена у спокійній гамі. За скляними напівпрозорими розсувними дверима захована зона пральні. Основну увагу бере на себе зона раковини та ванни з вбудованими змішувачами та нішами. Гостьовий санвузол наповнений теплими фарбами та енергією за рахунок простору над раковиною та оригінальною мозаїкою в зоні душової. Двері прихованого монтажу без лиштв, зливаються з декоративним оздобленням стіни, надаючи ефекту монолітності конструкції. Дух мегаполісу, ритм і динаміка - основа кімнати старшого сина. Цей ефект допоміг нам досягти унікальні шпалери із зображенням частини будівлі Нью-Йорка та імітація цегляної стіни в зоні телевізора. Подіум із заставною підсвіткою та висувними ящиками для зберігання речей, на якому розташується матрац, стільниця об'єднана з підвіконням та стелажі з боків - головна особливість геометрії кімнати. І звісно ж її окрасою є колекція моделей автомобілів у навісному стелажі. Кімната молодшого сина унікальна своїм плануванням. Візуально вона розділена на 3 зони: 1-ша прихована з першого погляду. Стільниця тут не тільки повторює вигини стіни, але й відповідає всім ергономічним вимогам. Вона добре освітлена, як у денний час, за рахунок природного світла, так і у вечірній. 2-га - активна зі шведською стінкою, 3-тя - зона відпочинку з комбінацією висувних ящиків. Замикає композицію оригінальний стелаж біля вікна. Спальня - одна з головних кімнат квартири. Це простір, де необхідно відпочити та відновити сили після важких буднів. Упор у цій кімнаті зроблено на легкість, повітряність та умиротворення. Паркетна дошка надала приміщенню духу заміського будинку, а підвісний туалетний стіл та тумби – легкості. Лоджія обладнана барною стійкою та велотренажером. Гра з простором, динаміка і водночас простота і лаконічність, чіткі лінії та функціональність. Вивірені та витримані форми м'яких меблів та витончені та вишукані лінії в кухонних меблях. Продумані, цікаві, нестандартні і водночас практичні рішення всієї квартири, кожної кімнати, кожного вузла, кожної деталі. Ось що є основою інтер'єру.
Показати повністю
Квартира 70 м.кв. Київ. Пр-т Правди
Тип житла:
Новобудова
Площа:
70 м2
Термін виконання:
36 робочих днів
Завдання:
Стояло завдання створити затишний простір для тимчасового проживання родичів або друзів власника квартири. Сучасна класика – стиль який обрав для себе замовник.
Особливість ремонту:
Так як будинок панельний, значних змін при переплануванні ми не робили. Велику кімнату віддали під спальню та організували в ній містку гардеробну. У передпокої організована шафа для одягу та напіввідкрита зона для швидкого доступу до верхнього одягу та взуття. Передпокій від коридору відокремлює темна плитка на підлозі, а об'єднує простір світлі шпалери у теплій гамі. Кухню частково об'єднали з вітальнею, демонтувавши незначну ділянку стіни. Прорізи залишені без дверей. В результаті ми отримали просторий простір, який з передпокою добре проглядається створюючи ефект притаманний обраному стилю. Розбавляє теплу гаму просторий балкон, стіни та стеля якого пофарбовані в білий колір. Декоративні гіпсові елементи об'єднують його з іншими приміщеннями. Цілісний образ всієї квартири вийшов за рахунок контрастного декору у вигляді шпалер на кухні та спальні, малюнок яких перегукується з візерунками на подушках у вітальні. А також "вкраплення" у вигляді світильників та декоративних опор меблів.
Показати повністю
Відгук клієнта:
Квартира в ЖК для молодої сім'ї з двома дітьми
Тип житла:
Новобудова
Площа:
90 м2
Термін виконання:
30 робочих днів
Завдання:
Створити світлий, затишний, сучасний інтер'єр з продуманими, цікавими, нестандартними та практичними рішеннями, де відкритий простір важливіший, ніж наявність додаткових зон зберігання.
Особливість ремонту:
Головний упор був на візуальне збільшення кімнат за рахунок оздоблювальних матеріалів. Так однією з перших ідей було декорувати всю стіну передпокою дзеркальними панелями. З боку вітальні в них відображаються вікна та розсувні двері балкона, а також благородне оздоблення протилежної стіни коридору. Ефект вийшов чудовий. Коридор, який ми звузили за рахунок збільшення гостьового санвузла, здається широким. Наступним фокусом уваги була спальня. Господарі квартири поставили завдання візуально збільшити кімнату. Перше рішення – ми демонтували частину стіни під підвіконням разом із поріжком і згодом розмістили розсувні двері. Завдяки цьому світла в приміщенні стало більше і простір візуально розширився. Наступним рішенням було збільшити площу спальні за рахунок кухні, організувавши на отриманих, після демонтажних та монтажних робіт, метрах гардеробну, що для багатьох господинь квартир є мрією. "Подарунок" від забудовника - два вікна в зоні кухні. Тому друге вікно тепер належить гардеробній. Крім цього ми його збільшили, за рахунок чого отримали більше природного світла. Від спальні гардеробну відокремлюють скляні розсувні двері в алюмінієвому профілі. При увімкненому світлі у вечірній час вони створюють цікаву повітряну атмосферу. Малий санвузол було розширено за рахунок коридору. Так ми отримали можливість організувати повноцінну душову зону, а в невеликій ніші розмістився умивальник. Двері в малий санвузол прихованого монтажу. З боку коридору як і стіни вона облицьована шпоном на основі МДФ, надаючи ефекту монолітності конструкції. М'який елемент складної форми повторює вигини стіни та підкреслює індивідуальність планувального рішення. Авторський декоративний елемент з функцією міні-бару у вітальні прикрашає стіну над каміном. Різні приховані з першого погляду зони зберігання роблять цей інтер'єр мінімалістичним, функціональним та ергономічним. Єдине приміщення, вирішене інакше, це кімната для дівчаток. Комплектуючи кімнату колекцією меблів у стилі ар-деко, ми гармонійно розбавили весь колорит квартири, дотримуючись обраного напрямку.
Показати повністю
Відгук клієнта:
Квартира для сім'ї з 4-х осіб з двома різностатевими дітьми-підлітками
Тип житла:
Новобудова
Площа:
95 м2
Термін виконання:
60 робочих днів
Завдання:
Це нетиповий проект. По-перше, стояло завдання в найкоротші терміни розробити повний дизайн-проєкт, включаючи 3D візуалізацію, а також підібрати якісні та недорогі меблі, сантехніку, побутову техніку та оздоблювальні матеріали, які мали бути в наявності на складах у Києві, а на замовні позиції термін був не більше 1 місяця. По-друге, на першому етапі проєктування було незручно проводити заміри у зв'язку з тим, що в цій квартирі ще жила інша сім'я і стояли великогабаритні меблі. По-третє, клієнти бажали, щоб кожна кімната була виконана у своєму індивідуальному стилі і лише незначні деталі могли об'єднувати спільний простір. При цьому перевага була на користь білоруських виробників корпусних та вбудованих меблів, а також IKEA. По-четверте, обмежений бюджет при значних демонтажних та монтажних роботах.
Особливість ремонту:
Було збільшено ванну за рахунок коридору, завдяки чому вдалося ергономічно вписати меблі та сантехніку. Багато позицій були придбані по акції. Окремо стоячу техніку, яку клієнт купував на етапі підготовки проєктної документації, вдалося гармонійно вписати в дизайн. Естетичним центром всього проекту є декоративна перегородка, виконана з дерев'яних рейок від підлоги до стелі та інтегровані в неї полиці для рослин у верхній частині, а в нижній закрита зона зберігання, яка одночасно естетичний та функціональний елемент інтер'єру, що об'єднує коридор та кухню-вітальню. Футуристичний відтінок у спальні надають світильники та силуети меблів, кімната для сина вирішена в стилі лофт, для доньки скандинавський образ надають меблі з IKEA, у змішаному сучасному стильовому напрямку загальна зона та ванна, гостовий санвузол з відтінками стилю лофт. Вийшло функціональне та затишне приміщення, в якому ми постаралися реалізувати ідеї, побудовані на основі уподобань кожного члена сім'ї. Позитивних результатів досягли завдяки діалогу з клієнтом, ретельному опрацюванню проєктних рішень, оперативним узгодженням та виїзним зустрічам.
Показати повністю
Фітнес-клуб. Київ.
Тип житла:
Новобудова
Площа:
3274,82 м2
Термін виконання:
80 робочих днів
Завдання:
При першому ж знайомстві з приміщенням було виявлено його значний недолік - це невисокі стелі, а коробів вентиляції ще не було. Точкою опори служив усіма улюблений і давно популярний стиль лофт.
Особливість ремонту:
Чорний колір для стель - досить ризиковане рішення при висоті 2.6м і до того ж багато експертів вважають це помилкою дизайнера. Але в нашому випадку це стало виходом із ситуації. Розширюють простір світла підлога та дзеркала. Витягують його по висоті вертикально розташована плитка під текстуру дерева, якою облицьовані стіни в зоні ресепшн, а також колони пофарбовані в чорний колір та каркасні стелажі. Зал із силовим обладнанням переважно в темній гамі, за винятком деяких верстатів, які я запропонував зробити білими, щоб ще більше підкреслити цей впорядкований хаос. Найсвітлішим і одним із найулюбленіших приміщень виявився зал аеробіки, стіни якого обклеєні дзеркалами, а стеля та короби вентиляції пофарбовані білою фарбою. Хол обладнаний скляним тамбуром на алюмінієвому каркасі чорного кольору. М'яка зона строгих геометричних форм зроблена на замовлення на металевому каркасі, яку доповнюють стелажі. Роздягальні та душові лаконічні та прості у виконанні. Роблять їх затишними лавки з масиву дуба на металевому каркасі. Стіни душових та підлога облицьовані керамогранітом під текстуру бетону з теплим сірим відтінком. Скло, камінь, дерево та метал - основні матеріали, які були використані в даному проекті. Вони допомогли створити потрібну атмосферу.
Показати повністю
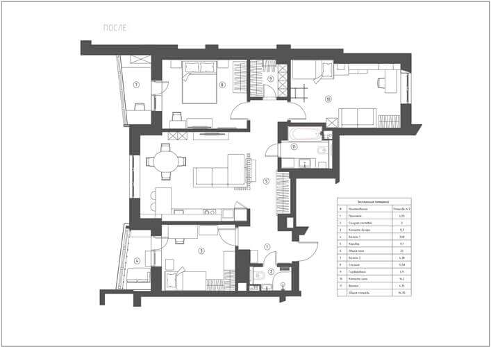
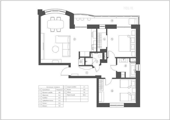
Будинок в IT комплексі для молодої сім'ї з двома дітьми.
Тип житла:
Новобудова
Площа:
92,8 м2
Термін виконання:
30 робочих днів
Завдання:
Клієнти звернулися, коли вже йшло будівництво будинку, але поки був готовий тільки фундамент. Cтояло завдання створити проект з нотами скандинавського стилю на основі стандартного проекту від забудовника. У найкоротші терміни необхідно було вирішувати де і якого розміру будуть вікна без суттєвих змін базового плану.
Особливість ремонту:
На першому поверсі було організовано кухню-вітальню. Пропозицію зробити додаткове вікно в стіні біля обідньої зони клієнтами було одразу схвалено. Таким чином додали більше природного світла, який поширився і на вітальню.
Встановлено газовий котел в зоні приготування їжі.
У вітальні знайшли місце для каміна, для цього було організовано димар.
Підлога на першому поверсі з водяним обігрівом облицьована керамогранітом під текстуру дерева.
Простір під сходами ми закрили, забезпечивши кімнату для котла та пральної машини.
На другому поверсі нам вдалося зробити три кімнати, забезпечивши одну зі стін додатковим вікном. Одну кімнату віддали для господарської спальні, дві інші - дитяча з двоповерховим ліжком та ігрова, яка за рахунок великих розсувних дверей трансформується в гостьову.
Ванну ми також забезпечили природним світлом, розмістивши невелике вікно, яке як і інші тільки підкреслили фасад будинку.
Так як в сім'ї 2 активних хлопчики стіни першого поверху включаючи сходовий хол покриті миючою фарбою.
Стіни другого поверху обклеєні шпалерами.
Так як приміщення вийшли невеликими мною було запропоновано відмовитися від повноцінного горища. Тому висота стелі в найвищій точці вийшла 3.5м. З боку будівельників і знайомих замовника ця ідея піддавалася критиці, але в підсумку всі виявилися задоволені. Завдяки цьому в приміщеннях достатньо свіжого повітря і світла. До того ж візуально кімнати не здаються стиснутими. І при цьому немає значних тепловтрат. Стелі на 2-му поверсі обшиті вагонкою і пофарбовані в білий колір.
На етапі підготовки дизайн-проекту інтер'єру я підключив архітектора, який створив новий зовнішній вигляд будинку, організувавши вхідну групу, критий гараж, відкриту терасу на задньому дворі, окремий госп. блок і оригінально вирішений ландшафт.
Навіть при обмеженому бюджеті вдалося створити затишне гніздечко.
Показати повністю
01
05
Завантажте повний прайс-лист +
приклад Складеного Кошторису
Ціна вказана в $ орієнтовно, розрахунок проводиться в гривні
Ремонт вторинного житла
від 180$ м2
Прощавайте «бабусині килими» та інші «бонуси» від попередніх мешканців
Ремонт у новобудові
від 150$ м2
«Одягнемо» голі стіни у що захочете
Ремонт пентхауса
від 150$ м2
Зробимо так, що вам не захочеться виходити на дах
Ремонт будинків та котеджів
від 180$ м2
Працюємо однаково добре на всіх рівнях і поверхах
Ремонт комерційної нерухомості
від 60$ м2
Дружимо з дедлайнами: дотримуємося термінів за будь-яких обсягів робіт
Ремонт офісів
від 60$ м2
Впораємося з ремонтом за вихідні – жодних відгулів за свій рахунок
Існує міф, що дизайн-проєкт - пуста трата часу.
Груба помилка!
Дизайн-проєкт — це не просто красива картинка майбутнього приміщення (хоча вона теж там є). Це повноцінний документ, в якому міститься абсолютно вся інформація про ремонт вашого приміщення, починаючи від замірів дверного отвору, закінчуючи кольором фурнітури меблів.
У дизайн-проєкті містяться детальні розрахунки абсолютно кожного напрямку робіт:
• проектування;
• складання креслень;
• оцінка вартості будівельних робіт;
• необхідна кількість будівельних матеріалів, їх вартість і т.д.
Візуалізація дизайну приміщення – окремий момент, який детально обговорюється із замовником. При цьому ви можете вносити правки та озвучувати свої побажання. Подальші розрахунки відбуватимуться безпосередньо після остаточного затвердження.
Тільки після вашої згоди буде представлена так би мовити «виворітна сторона» ремонту. Така докладна «інструкція» дозволить працівникам максимально точно виконати поставлене завдання. І тільки так на виході ви отримаєте той дизайн приміщення, який на який погодилися.
Завантажте пропозицію щодо дизайн-проєкту
Дивитись приклади дизайн проектівЗАЛИШАЄТЕ ЗАЯВКУ ТА ОТРИМУЄТЕ КОНСУЛЬТАЦІЮ
Ми Вас консультуємо, узгоджуємо який ремонт Вам потрібен, а також на що потрібно звернути увагу в першу чергу
Залишити заявку
ВИЇЖДЖАЄМО НА ОБ'ЄКТ І ПРОВОДИМО ЗАМІРИ ПРИМІЩЕННЯ
Зробимо заміри, допоможемо вибрати матеріали. Розкажемо, як не переплатити
УКЛАДАЄМО ДОГОВІР І СКЛАДАЄМО ГРАФІК ВИКОНАННЯ ТА ОПЛАТИ РОБІТ
Підписуємо з Вами договір та узгоджений кошторис
РОЗРАХОВУЄМОСЯ ПО ФАКТУ
На роботи даємо до 3 років гарантії. У разі дефектів безкоштовно усуваємо їх
ПРОВОДИМО 3-Х РІВНЕВУ ПЕРЕВІРКУ ЯКОСТІ ВИКОНАНИХ РОБІТ
Кожен наш об'єкт проходить 3-х рівневу систему контролю якості: виконроб — інженер з контролю якості — директор з будівництва
ЗДІЙСНЮЄМО РЕМОНТНІ РОБОТИ ВАШОГО ПРИМІЩЕННЯ
Закуповуємо всі матеріали та доставляємо на об'єкт, після приступаємо до ремонтних робіт і підписуємо акти прихованих і виконаних робіт по етапах. Працюємо за планом і надсилаємо фотозвіти. Після ремонту робимо прибирання та вивозимо сміття